Property Details
Island Crest /8 First Street, Sai Ying Pun Hong Kong
Sold $2,100Description
High floor Zone with habour view apartment in Island West.
Flat Sold - Sai Ying Pun Hong Kong
Property Features
- Flat
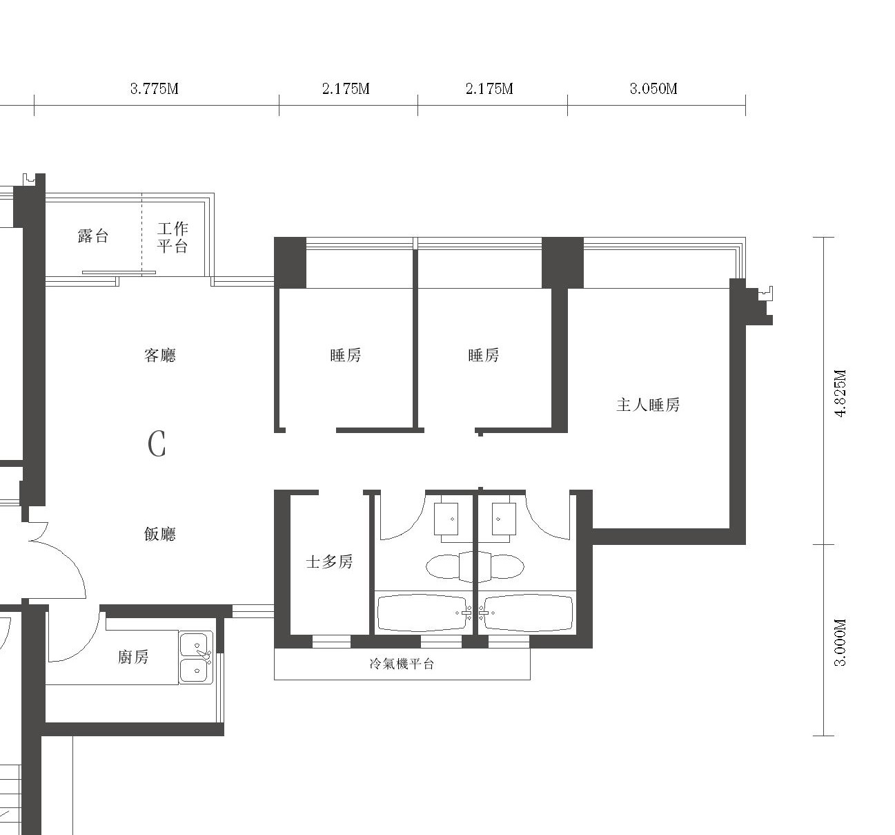
- 2 bath
- 3 Rooms
- Built 2009
- Alarm System
- Floor Area is 1,039 sqft
- New Construction
- Ensuite
- Balcony
- Split System Aircon
- Club House
- En-suite
- Full Harbour Sea View
- Prestigious School Network
- Sea View
- Zero distance to MTR